Gliwice

Obiekt na wynajem

Opis nieruchomości

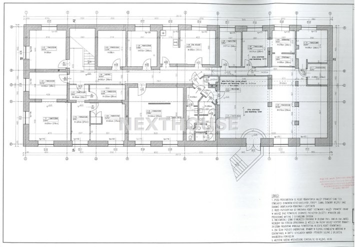
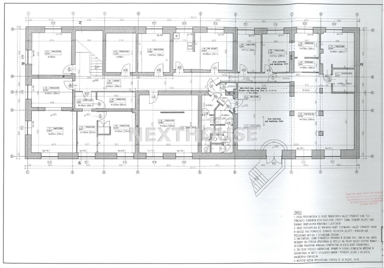
Oferujemy Państwu do wynajęcia nowoczesny i funkcjonalny obiekt dwukondygnacyjny, handlowo-biurowo-usługowy z miejskim ogrzewaniem i ciepłą wodą na działce 1658 m2, w Gliwicach, bezpośrednio przy węźle autostrad  A-4, A-1 i DK902. Nieruchomość po ekspertyzie budowlanej z możliwością rozbudowy o kolejne dwie kondygnacje.Parter:12  pomieszczeń biurowych o wysokim standardzie, klimatyzowanych z możliwością ich dowolnej aranżacji, pomieszczenie socjalne, 2 WC oraz hall o łącznej powierzchni 410,30 m2. Przyziemie:14 pomieszczeń, pomieszczenie socjalne, 2 serwerownie, wymiennikownia, 2 WC oraz korytarz o łącznej powierzchni 377,49 m2. Budynek wykonano w technologii tradycyjnej z cegły, docieplono styropianem, dwa niezależne wejścia, alarm, klimatyzacja w części biurowej, własne miejsca parkingowe. Cena najmu nie obejmuje mediów. Zapraszamy na prezentację.
Bezpieczeństwo transakcji gwarantuje licencjonowany pośrednik w obrocie nieruchomościami: Jerzy Piotrowski, nr licencji zawodowej Polskiej Federacji Rynku Nieruchomości nr:25088.

Nota prawna

Opis oferty zawarty na stronie internetowej sporządzany jest na podstawie oględzin nieruchomości oraz informacji uzyskanych od właściciela, może podlegać aktualizacji i nie stanowi oferty określonej w art. 66 i następnych K.C.

Szczegóły oferty

Symbol oferty NXH-BW-5807
Powierzchnia 787,79 m²
Rodzaj obiektu biurowiec
Standard
Woda ciepła - miejska
Otoczenie działki zabudowane
Ogrzewanie miejskie
Odległość do komunikacji publicznej [m] 300 m
Własny parking tak
Wejście od ulicy
Prąd jest
Kanalizacja miejska

Podobne oferty

obiekt na wynajem - Gliwice

obiekt na wynajem

Gliwice
  491,00 m2 43,00 zł/m2

Napisz do nas

Proszę wypełnić to pole
Proszę wypełnić to pole
Proszę wypełnić to pole
Proszę wypełnić to pole
Trwa wysyłanie...

Ta strona wykorzystuje pliki cookies w celach statystycznych oraz w celu dostosowania naszych serwisów do indywidualnych potrzeb klientów. Zmiany ustawień dotyczących plików cookie można dokonać w dowolnej chwili modyfikując ustawienia przeglądarki. Korzystanie z tej strony bez zmian ustawień dotyczących cookies oznacza, że będą one zapisane w pamięci urządzenia.

rozumiem