Gliwice, Ostropa

Dom na sprzedaż

Opis nieruchomości

Zapraszamy do zapoznania się z ofertą sprzedaży nowoczesnego domu w zabudowie szeregowej/środkowy szereg /, położonego w urokliwej dzielnicy Gliwic – Ostropa. Miejsce to gwarantuje spokojną atmosferę, jednocześnie będąc świetnie skomunikowane z centrum miasta, do którego dotrzesz w zaledwie kilka minut.
Dom i jego wnętrze
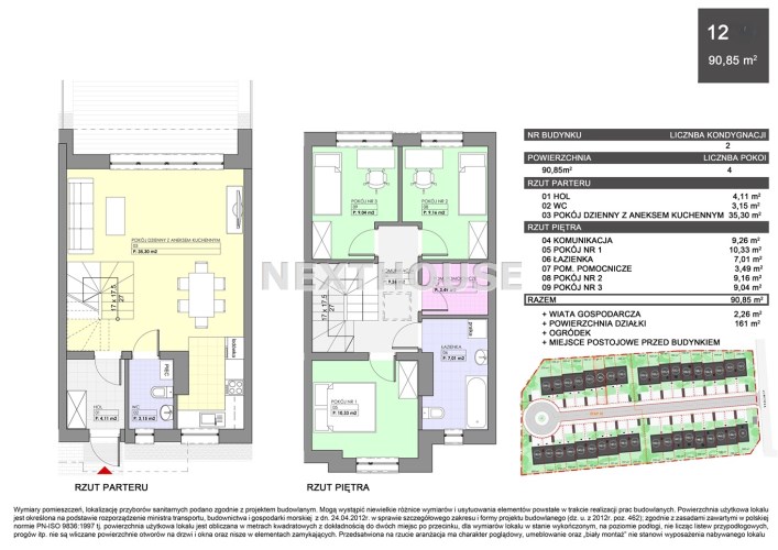
- Powierzchnia: 90,85 m², co zapewnia komfortową przestrzeń dla rodziny.
- Rozkład pomieszczeń: 4 ustawne pokoje, idealne zarówno dla rodzin z dziećmi, jak i osób ceniących dodatkowe miejsce do pracy czy odpoczynku.
- Ogrzewanie podłogowe oraz kocioł gazowy do ciepłej wody – nowoczesne i ekonomiczne rozwiązania dla Twojej wygody.
Lokalizacja i otoczenie
- Doskonałe położenie: blisko DW 902 oraz autostrad A-1 i A-4, co ułatwia podróże w każdym kierunku.
- W pobliżu znajdują się szkoła i przedszkole – Twoje dzieci będą miały krótki i bezpieczny dojazd.W bliskiej odległości przystanek komunikacji miejskiej.
- Otoczenie pełne zieleni, idealne miejsce na spacery i rodzinny relaks.
Solidne wykonanie
- Budynek z pustaka ceramicznego / Porotherm /, oddany do użytkowania – jakość nowoczesnego i funkcjonalnego rynku pierwotnego.
- Okna PCV/trzyszybowe/ z roletami na parterze, docieplenie styropianem ,dach pokryty papą, co zapewnia trwałość i niskie koszty eksploatacji.
- Droga dojazdowa wyłożona kostką brukową, bezpłatne miejsce parkingowe , budynek gospodarczy , ogródek 165 m2.
Zapraszam do kontaktu!
 Jeśli szukasz miejsca, które połączy komfort mieszkania z bliskością miasta, ten dom jest właśnie dla Ciebie. Nie zwlekaj – napisz lub zadzwoń, umów się na spotkanie i zobacz ten dom na własne oczy.Zapraszamy na prezentację. Bezpieczeństwo transakcji gwarantuje licencjonowany pośrednik w obrocie nieruchomościami:Jerzy Piotrowski,nr licencji zawodowej Polskiej Federacji Rynku Nieruchomości nr: 25088.

Nota prawna

Opis oferty zawarty na stronie internetowej sporządzany jest na podstawie oględzin nieruchomości oraz informacji uzyskanych od właściciela, może podlegać aktualizacji i nie stanowi oferty określonej w art. 66 i następnych K.C.

Szczegóły oferty

Symbol oferty NXH-DS-6125
Powierzchnia 90,85 m²
Powierzchnia użytkowa 90,85 m²
Liczba pokoi 4
Rodzaj domu szereg środkowy
Technologia budowlana ceramiczny porotherm
Standard
Liczba pięter w budynku 1
Okna nowe PCV
Instalacje nowe
Balkon brak
Zagosp. działki niezagospodarowana
Ukształtowanie działki płaska
Kształt działki prostokat
Pokrycie dachu papa
Stan budynku do wykończenia
Ogrodzenie działki siatka
Rok budowy 2024
Gaz jest
Woda ciepła z pieca CO
Ogrzewanie podłogowe
Rolety antywłamaniowe tak
Prąd jest
Kanalizacja miejska

Pomieszczenia

Rodzaj kuchni oddzielna
Typ łazienki razem z wc
Liczba łazienek 1
Liczba WC 1
Liczba przedpokoi 1

Kalkulator kredytowy

PLN
%
Wysokość raty

Kalkulator kosztów

PLN
PLN
PLN
PLN
PLN
PLN
%
PLN
Podatek od czynności cywilno-prawnych
Taksa notarialna (opłata notarialna)
VAT od taksy notarialnej (opłaty notarialnej)
Wniosek do WKW
VAT od wniosku do WKW
Prowizja agencji nieruchomości
VAT od prowizji agencji nieruchomości
Wypisy aktu notarialnego - około
RAZEM (cena + opłaty)

Podobne oferty

dom na sprzedaż - Gliwice, Ostropa

dom na sprzedaż

Gliwice, Ostropa
4 pokoje 90,85 m2 7 925,15 zł/m2
dom na sprzedaż - Gliwice, Ostropa

dom na sprzedaż

Gliwice, Ostropa
4 pokoje 90,85 m2 8 475,51 zł/m2
dom na sprzedaż - Gliwice, Ostropa

dom na sprzedaż

Gliwice, Ostropa
4 pokoje 90,85 m2 9 356,08 zł/m2
dom na sprzedaż - Gliwice, Ostropa

dom na sprzedaż

Gliwice, Ostropa
4 pokoje 90,85 m2 9 135,94 zł/m2

Napisz do nas

Proszę wypełnić to pole
Proszę wypełnić to pole
Proszę wypełnić to pole
Proszę wypełnić to pole
Trwa wysyłanie...

Ta strona wykorzystuje pliki cookies w celach statystycznych oraz w celu dostosowania naszych serwisów do indywidualnych potrzeb klientów. Zmiany ustawień dotyczących plików cookie można dokonać w dowolnej chwili modyfikując ustawienia przeglądarki. Korzystanie z tej strony bez zmian ustawień dotyczących cookies oznacza, że będą one zapisane w pamięci urządzenia.

rozumiem