Jaworzno

Obiekt na sprzedaż

Opis nieruchomości

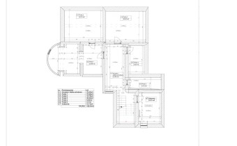
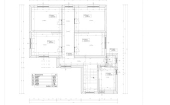
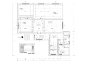
Oferujemy Państwu do sprzedaży podpiwniczony budynek biurowy, jednopiętrowy usytuowany na działce o powierzchni 1380 m2  w miejscowości Jaworzno, tuż przy samym centrum handlowym. Doskonała lokalizacja, dogodny dojazd ze wszystkich miast aglomeracji Śląskiej, sprawia, że obiekt ma wszechstronne możliwości adaptacji, od medycznej, usługowej, handlowej po biurową. Nieruchomość do kapitalnego remontu. Piwnica: 5 pokoi, kotłownia, parter: 5 pokoi, 2 łazienki, piętro: 5 pokoi, WC. Przygotowany jest projekt pod działalność szkoleniową z możliwością częściowego finansowania adaptacji. Zapraszamy na prezentację.
Bezpieczeństwo transakcji gwarantuje licencjonowany pośrednik w obrocie nieruchomościami Jerzy Piotrowski licencja zawodowa Polskiej Federacji Rynku Nieruchomości nr: 25088. Zapraszamy na prezentację.

Nota prawna

Opis oferty zawarty na stronie internetowej sporządzany jest na podstawie oględzin nieruchomości oraz informacji uzyskanych od właściciela, może podlegać aktualizacji i nie stanowi oferty określonej w art. 66 i następnych K.C.

Szczegóły oferty

Symbol oferty NXH-BS-5803
Powierzchnia 364,11 m²
Powierzchnia działki 1 380 m²
Rodzaj obiektu biurowiec
Standard
Stan prawny Własność
Własny parking tak

Kalkulator kredytowy

PLN
%
Wysokość raty

Kalkulator kosztów

PLN
PLN
PLN
PLN
PLN
PLN
%
PLN
Podatek od czynności cywilno-prawnych
Taksa notarialna (opłata notarialna)
VAT od taksy notarialnej (opłaty notarialnej)
Wniosek do WKW
VAT od wniosku do WKW
Prowizja agencji nieruchomości
VAT od prowizji agencji nieruchomości
Wypisy aktu notarialnego - około
RAZEM (cena + opłaty)

Napisz do nas

Proszę wypełnić to pole
Proszę wypełnić to pole
Proszę wypełnić to pole
Proszę wypełnić to pole
Trwa wysyłanie...

Ta strona wykorzystuje pliki cookies w celach statystycznych oraz w celu dostosowania naszych serwisów do indywidualnych potrzeb klientów. Zmiany ustawień dotyczących plików cookie można dokonać w dowolnej chwili modyfikując ustawienia przeglądarki. Korzystanie z tej strony bez zmian ustawień dotyczących cookies oznacza, że będą one zapisane w pamięci urządzenia.

rozumiem